arrow down

Plan interactiv bloc

Vizualizează planurile fiecărui etaj! Selectează etajul dorit și descoperă poziționarea apartamentelor.

Plan interactiv Bloc 2A

Alege etajul
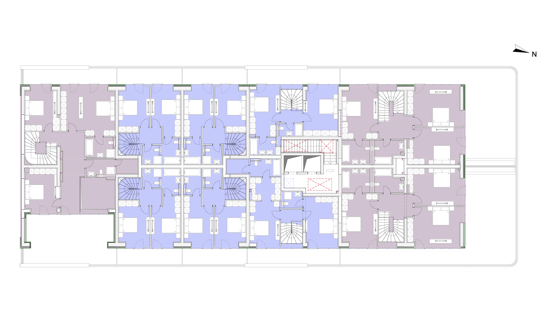
La etajul 12 al blocului 2A din HILS Nord se afla nivelul 2 al celor 9 duplexuri.
Plan interactiv
VEZI APARTAMENTELE
SOLICITĂ O OFERTĂ